REQUEST A TOUR If you would like to see this home without being there in person, select the "Virtual Tour" option and your agent will contact you to discuss available opportunities.
In-PersonVirtual Tour

$ 425,000
Est. payment /mo
New
186 Dove Creek Dr Key Largo, FL 33070
5,500 Sqft Lot
UPDATED:
Key Details
Property Type Vacant Land
Sub Type Residential
Listing Status Active
Purchase Type For Sale
Subdivision Harris Ocean Park Estates
MLS Listing ID F10546469
Annual Tax Amount $1,122
Tax Year 2025
Lot Size 5,500 Sqft
Property Sub-Type Residential
Property Description
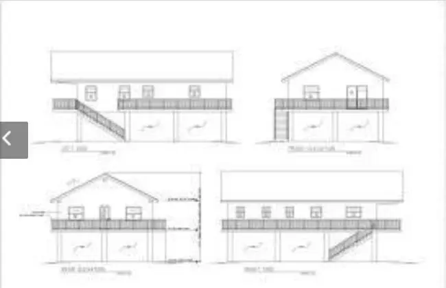
Two lots, one with ACTIVE permit. Construction in progress on this OCEANSIDE upper keys 3/2 single family home with large balcony overlooking ocean. Plans for this home include elevated CBS with pilings already in place; building plans may be modified. Surrounded by protected hardwood hammock providing privacy. Harris Park just down the street with boat ramp, beach, picnicking, softball, & basketball court.
Location
State FL
County Monroe County
Area Other Geographic Area (Out Of Area Only)
Zoning Residential
Exterior
Utilities Available Cable Tv, Sewer, Trash Removal
Private Pool No
Building
Lot Description Less Than 1/4 Acre Lot, East Of Us 1
Sewer At Site
Water Municipal Water
Others
Acceptable Financing Conventional, Cryptocurrency
Listing Terms Conventional, Cryptocurrency
Special Listing Condition Flood Zone
Virtual Tour https://www.propertypanorama.com/186-Dove-Creek-Dr-Key-Largo-FL-33070/unbranded

Listed by Jack Keller Inc






